














快来发现新项目:Nerja 的 17 套 3 居室半独立式住宅。
Marisa Paradise 是一个住宅综合体,有 3 层(一楼、一楼和二楼)、地下室和日光浴室。
海景住宅位于安静的区域,距离市中心、超市、商店和餐馆 5 分钟路程。
预订您在 Paradise 的新家,您将选择理想的居住地、假期或未来的有利可图的投资。
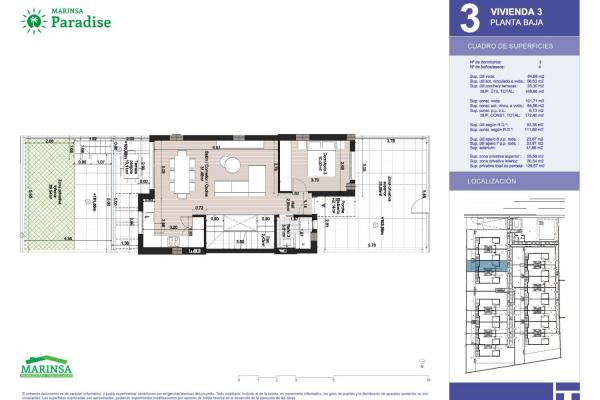
设备齐全的厨房,包括陶瓷炉、水槽和抽油烟机。设有 3 间设施齐全的浴室和卫生间、镜子和淋浴屏。卧室和客厅的自动百叶窗。瓷地板。盖上衣柜。安装管道式空调,包括分体式管道式空调设备。通过高效热泵设备提供生活热水。每栋房屋均设有带人造草坪的大露台和两个停车位,分别是 6 号和 7 号公共通道。围墙设有一个公共游泳池,供业主享用。
环境
天堂位于内尔哈,这是太阳海岸东部最著名的村庄,以其著名的洞穴、海滩和繁华的生活而闻名。
– 距高速公路仅一箭之遥
– 距马拉加 40 分钟路程。
– 距格拉纳达 60 分钟
– 距贝莱斯 – 马拉加 25 分钟路程,
– 距 AVE 站 45 分钟路程。
– 距机场 50 分钟路程。
一个理想的生活环境,没有大型城市群的压力,适合体育、文化和美食旅游。
请致电 607 84 47 19 联系我们。
根据 10 月 11 日颁布的第 218/2005 号法令,该法令批准了安达卢西亚房屋销售和租赁中的消费者信息条例,客户被告知,适用于他们的公证和登记费用和税款(IPT 或增值税 + AJD)以及销售固有的其他费用不包括在价格中。 价格包括物业管理费。消费者有权获得房屋的相应缩写信息文件的副本。
CALIFICACIÓN ENERGÉTICA
|
Consumo energía kW h / m2 año |
Emisiones CO2 kg CO2 / m2 año |
---|---|---|
A | ||
B | ||
C | ||
D | ||
E | ||
F | ||
G |